Sports-Dome
Hamburg HafenCity
Wettbewerb und Entwurf einer Sportstätte

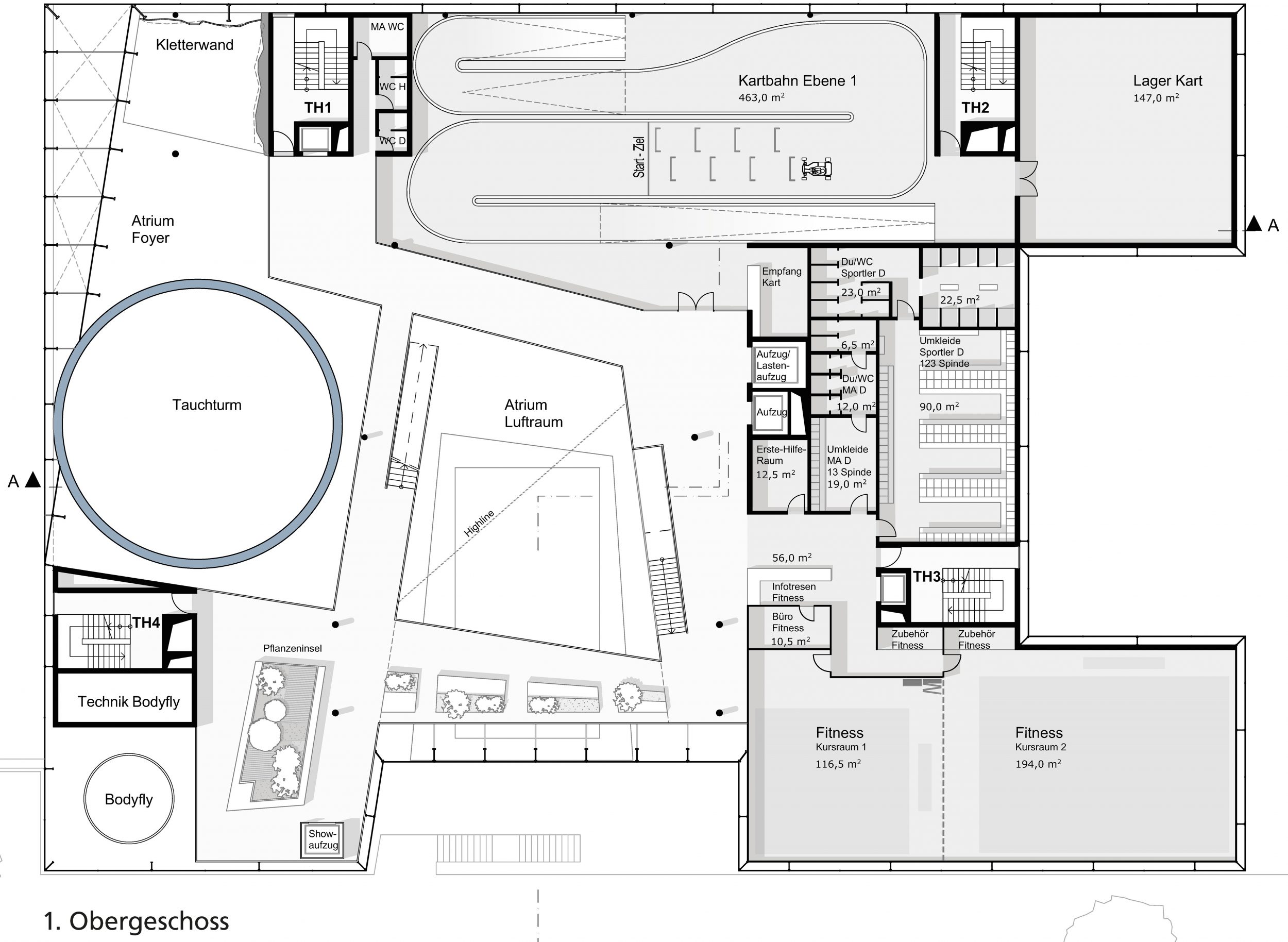
Der Sports-Dome soll DER öffentliche Anziehungspunkt für sportbegeisterte Touristen, sowie Einheimische am Baakenhafen werden. Die Gestaltung des Entwurfes sieht eine dynamische Fassade vor, die sich jedoch in Ihrer Gliederung an die baurechtlichen Vorgaben hält und die Kubatur unterstützt. Große, transparente Einblicke auf die verschiedensten Action-Sport-Aktivitäten von Tauchen, über Klettern zu „Fliegen“ sind mittels transparenter Glasfassaden möglich und ziehen die Besucher aus allen Himmelsrichtungen zum neuen Sports-Dome.

Nach dem Wettbewerb erfolgte eine konkrete Ausarbeitung des Entwurf über die Leistungsphasen 1 – 3.

Ort
Hamburg HafenCity

Auftraggeber:innen
Fortoon Development GmbH

Ausführungszeitraum
2018 - 2019

Leistungsphasen
1 - 3

Wettbewerb und Entwurf einer Sportstätte

Der Sports-Dome soll DER öffentliche Anziehungspunkt für sportbegeisterte Touristen, sowie Einheimische am Baakenhafen werden. Die Gestaltung des Entwurfes sieht eine dynamische Fassade vor, die sich jedoch in Ihrer Gliederung an die baurechtlichen Vorgaben hält und die Kubatur unterstützt. Große, transparente Einblicke auf die verschiedensten Action-Sport-Aktivitäten von Tauchen, über Klettern zu „Fliegen“ sind mittels transparenter Glasfassaden möglich und ziehen die Besucher aus allen Himmelsrichtungen zum neuen Sports-Dome.

Nach dem Wettbewerb erfolgte eine konkrete Ausarbeitung des Entwurf über die Leistungsphasen 1 – 3.

Grundriss
Ansicht
Schnitt
Detail
Ort
Hamburg HafenCity

Auftraggeber:innen
Fortoon Development GmbH

Ausführungszeitraum
2018 - 2019

Leistungsphasen
1 - 3