Museum der Arbeit
Hamburg Barmbek
Revitalisierung eines denkmalgeschützten Industrieensembles

Auf dem Gelände der ehemaligen „New York Hamburger Gummi-Waaren-Compagnie“ im Hamburger Stadtteil Barmbek entstand Mitte der Achtziger Jahre in den historischen Räumen das Museum der Arbeit. Als einer der wenigen Standorte in Hamburg veranschaulicht das denkmalgeschützte Industrieensemble aus mehreren Gebäuden die Industrialisierung Hamburgs.2005 wurde das Gelände als Sanierungsgebiet ausgewiesen und die bestehenden Gebäude in der Denkmalschutzliste vermerkt.

2006 gewann das Büro Prof. Moths Architekten den Wettbewerb zur Gestaltung des „Eingangs“ zum Gesamtensemble Museum der Arbeit verbunden mit einem Konzept zur Kundenführung innerhalb der Versatzstücke und sanierte bereits 2008 ein Bestandsgebäude aufwendig unter Berücksichtigung des Denkmalschutzes.

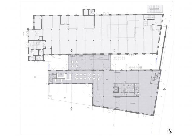
Das Torhaus auf dem Gelände des Museums der Arbeit soll bei der Revitalisierung als Druck- und Medienhaus die äußere Gestaltung in Anlehnung an den Bauzustand von 1910 erhalten. Durch eine aufwendige Sanierung müssen zahlreiche Kriegsschäden beseitigt werden, um das Gebäude vor dem Zerfall zu schützen. Dabei können die Außenwände in Teilen erhalten werden, teilweise müssen sie durch vielfache Umbauten im Laufe der Jahre wiederhergestellt bzw. dem historischen Vorbild nachempfunden werden. Das Gebäude erhält wieder ein Walmdach, nach historischem Vorbild, mit Satteldachgauben. Es besteht aus einer Holz-/Stahlkonstruktion mit Zinkeindeckung.

Das Innere des Torhauses wird komplett entkernt und neu organisiert, da die vorhandenen Wände nicht dem ursprünglichen Zustand entsprechen und somit nicht erhaltenswert sind.Zudem wird eine Verbindung zum vorgelagerten Hauptgebäude geschaffen. Diese Verbindung wird ein gläserner Zwischenbaukörper herstellen, der jedoch aufgrund seiner Leichtigkeit und Transparenz die Eigenständigkeit des Hauptgebäudes und des Torhauses nicht stört, sondern der historischen Zusammengehörigkeit dient. Neben seiner eigentlichen Aufgabe die beiden Gebäude wettergeschützt zu verbinden, soll er die Eingang- und Ausstellungsfläche erweitern und einen Einstieg ins Ausstellungsthema schaffen.

Die Sanierung und Erweiterung des Torhauses dient dem ganzen Komplex und wird das Museum der Arbeit mit seinen einzelnen Gebäuden stärker als Einheit erlebbar machen.

Typologie
Ausstellungsgebäude
Gastronomie

Ort
Hamburg Barmbek

Auftraggeber:innen
Historische Museen Hamburg Stiftung öffentlichen Rechts, Museum der Arbeit

Ausführungszeitraum
2007

Leistungsphasen
1 - 4

Revitalisierung eines denkmalgeschützten Industrieensembles

Auf dem Gelände der ehemaligen „New York Hamburger Gummi-Waaren-Compagnie“ im Hamburger Stadtteil Barmbek entstand Mitte der Achtziger Jahre in den historischen Räumen das Museum der Arbeit. Als einer der wenigen Standorte in Hamburg veranschaulicht das denkmalgeschützte Industrieensemble aus mehreren Gebäuden die Industrialisierung Hamburgs.2005 wurde das Gelände als Sanierungsgebiet ausgewiesen und die bestehenden Gebäude in der Denkmalschutzliste vermerkt.

2006 gewann das Büro Prof. Moths Architekten den Wettbewerb zur Gestaltung des „Eingangs“ zum Gesamtensemble Museum der Arbeit verbunden mit einem Konzept zur Kundenführung innerhalb der Versatzstücke und sanierte bereits 2008 ein Bestandsgebäude aufwendig unter Berücksichtigung des Denkmalschutzes.

Das Torhaus auf dem Gelände des Museums der Arbeit soll bei der Revitalisierung als Druck- und Medienhaus die äußere Gestaltung in Anlehnung an den Bauzustand von 1910 erhalten. Durch eine aufwendige Sanierung müssen zahlreiche Kriegsschäden beseitigt werden, um das Gebäude vor dem Zerfall zu schützen. Dabei können die Außenwände in Teilen erhalten werden, teilweise müssen sie durch vielfache Umbauten im Laufe der Jahre wiederhergestellt bzw. dem historischen Vorbild nachempfunden werden. Das Gebäude erhält wieder ein Walmdach, nach historischem Vorbild, mit Satteldachgauben. Es besteht aus einer Holz-/Stahlkonstruktion mit Zinkeindeckung.

Das Innere des Torhauses wird komplett entkernt und neu organisiert, da die vorhandenen Wände nicht dem ursprünglichen Zustand entsprechen und somit nicht erhaltenswert sind.Zudem wird eine Verbindung zum vorgelagerten Hauptgebäude geschaffen. Diese Verbindung wird ein gläserner Zwischenbaukörper herstellen, der jedoch aufgrund seiner Leichtigkeit und Transparenz die Eigenständigkeit des Hauptgebäudes und des Torhauses nicht stört, sondern der historischen Zusammengehörigkeit dient. Neben seiner eigentlichen Aufgabe die beiden Gebäude wettergeschützt zu verbinden, soll er die Eingang- und Ausstellungsfläche erweitern und einen Einstieg ins Ausstellungsthema schaffen.

Die Sanierung und Erweiterung des Torhauses dient dem ganzen Komplex und wird das Museum der Arbeit mit seinen einzelnen Gebäuden stärker als Einheit erlebbar machen.

Lageplan
Grundriss
Ansicht
Schnitt
Typologie
Ausstellungsgebäude
Gastronomie

Ort
Hamburg Barmbek

Auftraggeber:innen
Historische Museen Hamburg Stiftung öffentlichen Rechts, Museum der Arbeit

Ausführungszeitraum
2007

Leistungsphasen
1 - 4