Mehrfamilienhaus H II
Hamburg Wandsbek
Erweiterung und Sanierung eines Wohnhauses

Die Planung des Bestandsgebäudes in Hamburg Bramfeld wurde auf dem Grundstück maximal ausgenutzt, um die vorhandenen Flächen effizient zu nutzen. Dabei wurde bewusst auf einen Rückbau des Bestandsgebäudes verzichtet, da dies in Bezug auf die Primärenergie nachhaltiger ist. Durch den Erhalt des Bestandsschutzes und der daraus resultierenden vorteilhaften Position auf dem Grundstück konnten die Abstandsflächen reduziert und eine größtmögliche Wohnfläche realisiert werden.

Über dem Erdgeschoss wird der Bestand um zwei weitere Geschosse in energieeffizienter Holzbauweise erweitert. Die geplante Modernisierung und Erweiterung orientiert sich gezielt am Effizienzhaus 40-Standard, sodass hohe Energieeinsparungen erreicht werden.

Auch das bestehende Treppenhaus wird den heutigen Anforderungen entsprechend umgebaut, um die drei Wohneinheiten barrierefrei und komfortabel zu erschließen.

Die energetische Sanierung umfasst eine hochwertige Gebäudehülle, die Nutzung von Geothermie mittels Wärmepumpentechnologie und eine Dachbegrünung mit integrierter Solarstromerzeugung.

Typologie
Wohnungsbau

Ort
Hamburg Bramfeld

Auftraggeber:innen
privat

Ausführungszeitraum
2023 - 2025

Leistungsphasen
1 - 7 (8)

Erweiterung und Sanierung eines Wohnhauses

Die Planung des Bestandsgebäudes in Hamburg Bramfeld wurde auf dem Grundstück maximal ausgenutzt, um die vorhandenen Flächen effizient zu nutzen. Dabei wurde bewusst auf einen Rückbau des Bestandsgebäudes verzichtet, da dies in Bezug auf die Primärenergie nachhaltiger ist. Durch den Erhalt des Bestandsschutzes und der daraus resultierenden vorteilhaften Position auf dem Grundstück konnten die Abstandsflächen reduziert und eine größtmögliche Wohnfläche realisiert werden.

Über dem Erdgeschoss wird der Bestand um zwei weitere Geschosse in energieeffizienter Holzbauweise erweitert. Die geplante Modernisierung und Erweiterung orientiert sich gezielt am Effizienzhaus 40-Standard, sodass hohe Energieeinsparungen erreicht werden.

Auch das bestehende Treppenhaus wird den heutigen Anforderungen entsprechend umgebaut, um die drei Wohneinheiten barrierefrei und komfortabel zu erschließen.

Die energetische Sanierung umfasst eine hochwertige Gebäudehülle, die Nutzung von Geothermie mittels Wärmepumpentechnologie und eine Dachbegrünung mit integrierter Solarstromerzeugung.

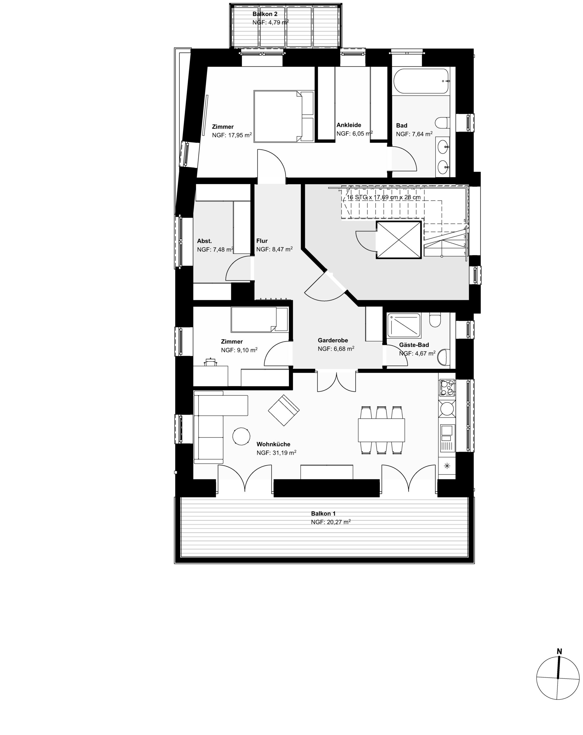
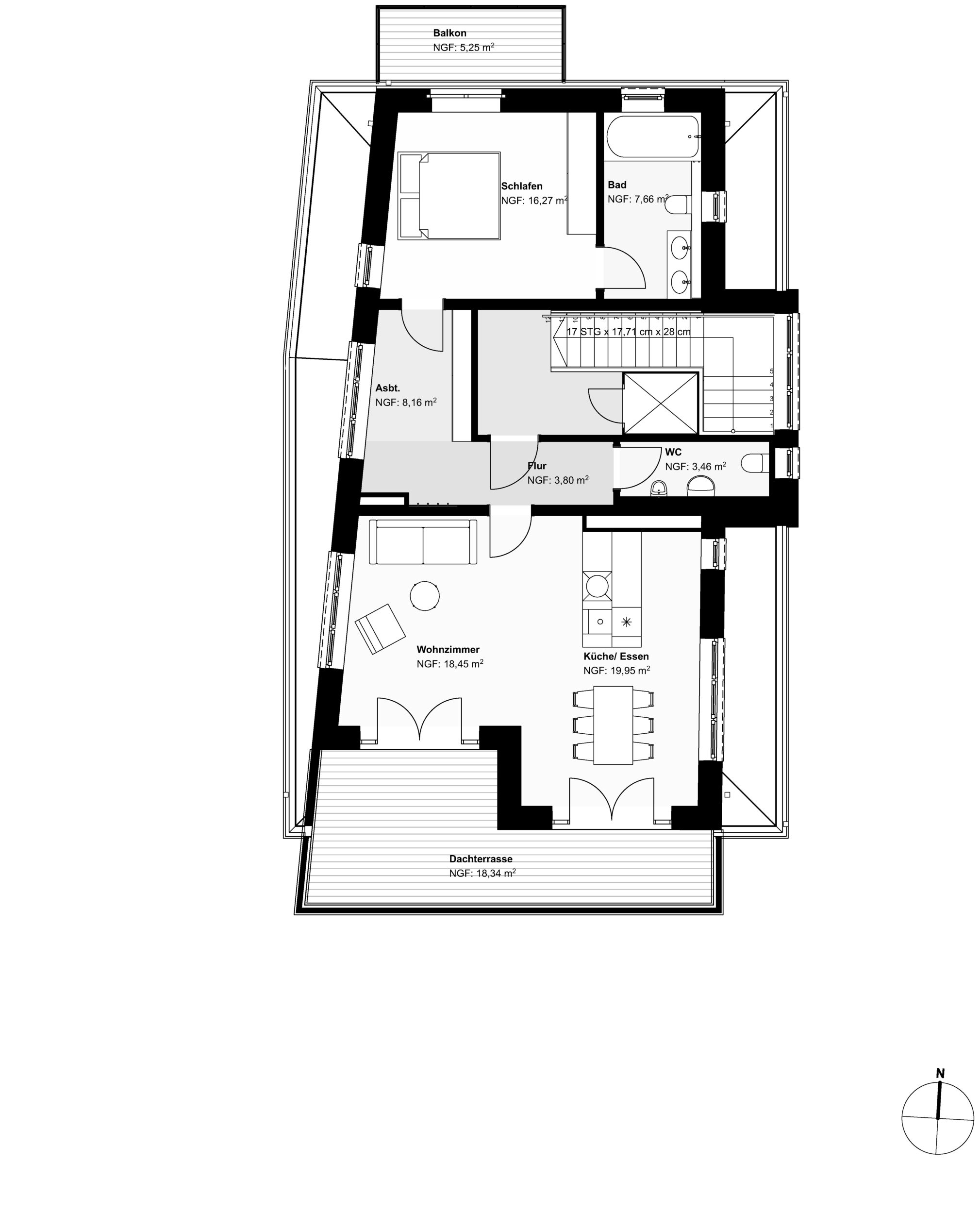
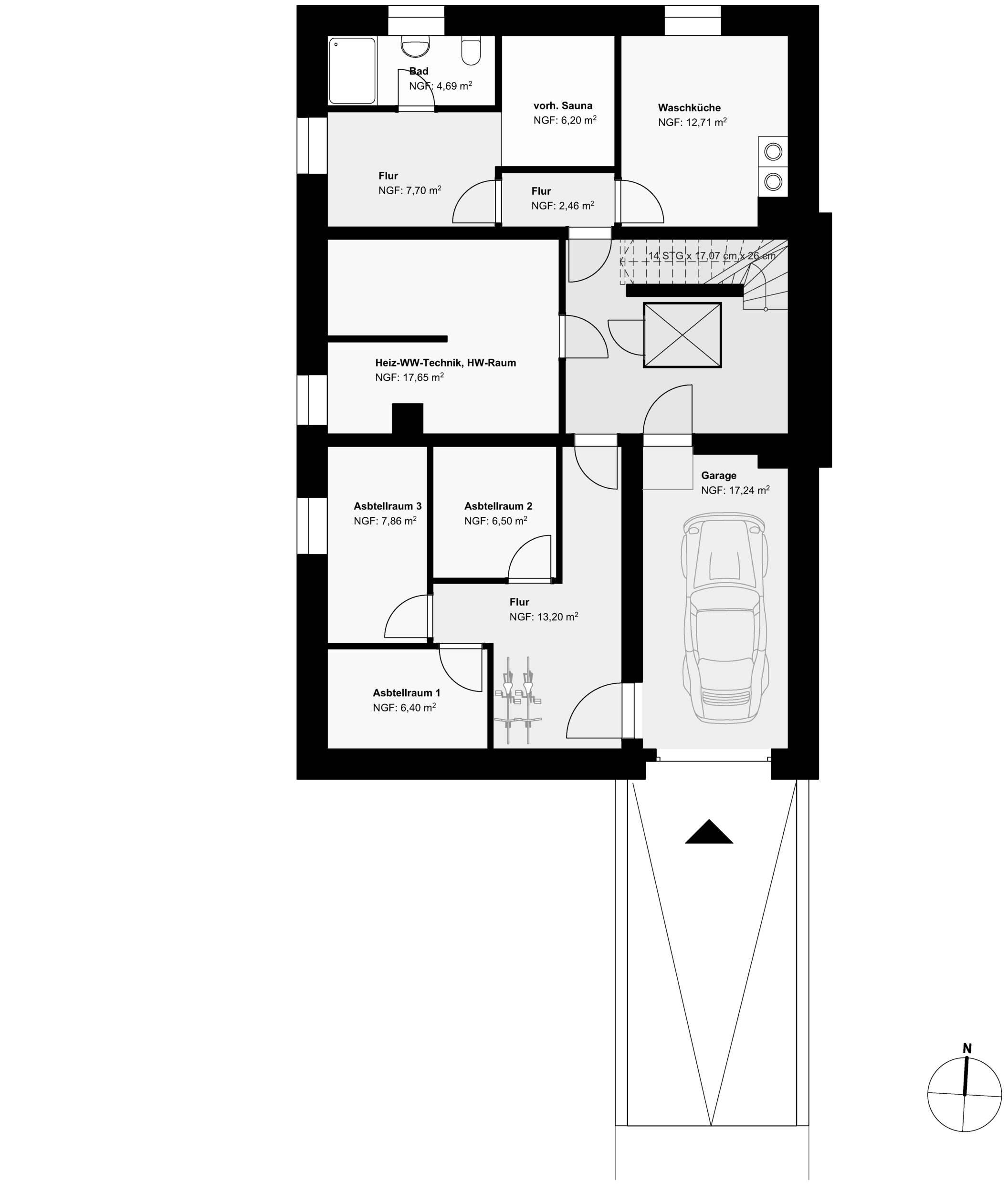
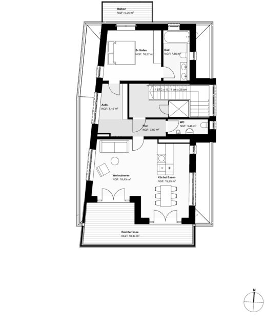
Grundriss
Typologie
Wohnungsbau

Ort
Hamburg Bramfeld

Auftraggeber:innen
privat

Ausführungszeitraum
2023 - 2025

Leistungsphasen
1 - 7 (8)